Rénovation d’une maison abandonnée
Dans un beau village normand
Le contexte : Cette ancienne ferme située en pleine campagne normande était abandonnée depuis 50 ans. Elle n’avait pas l’eau courante et n’était plus raccordée au réseau électrique. D’une surface d’environ 70m² au sol, la maison était composée d’une pièce de vie, d’étables et d’un grenier.
Le projet : Cette maison typique en granite avec sa toiture en ardoise sera parfaite en résidence secondaire familiale.
La réalisation : Le rez-de-chaussée de cette maison devait pouvoir accueillir une personne en fauteuil roulant. Il devait donc regrouper toutes les fonctions de vie avec la cuisine, la salle à manger, le salon, une chambre et une salle de bain avec wc. La pièce de vie principale conserve ses points forts d’origine comme les poutres et pierres apparentes ainsi que la cheminée pour l’ambiance de la ferme.
Un meuble d’entrée avec dressing et banc crée une séparation avec la cuisine pour un espace de télétravail
La salle de bain tout en béton ciré avec son meuble vasque intégrée permet une utilisation de l’espace aisée en fauteuil roulant et la chambre possède une porte-fenêtre pour accéder directement à la coursive bétonnée qui fait le tour de la maison.
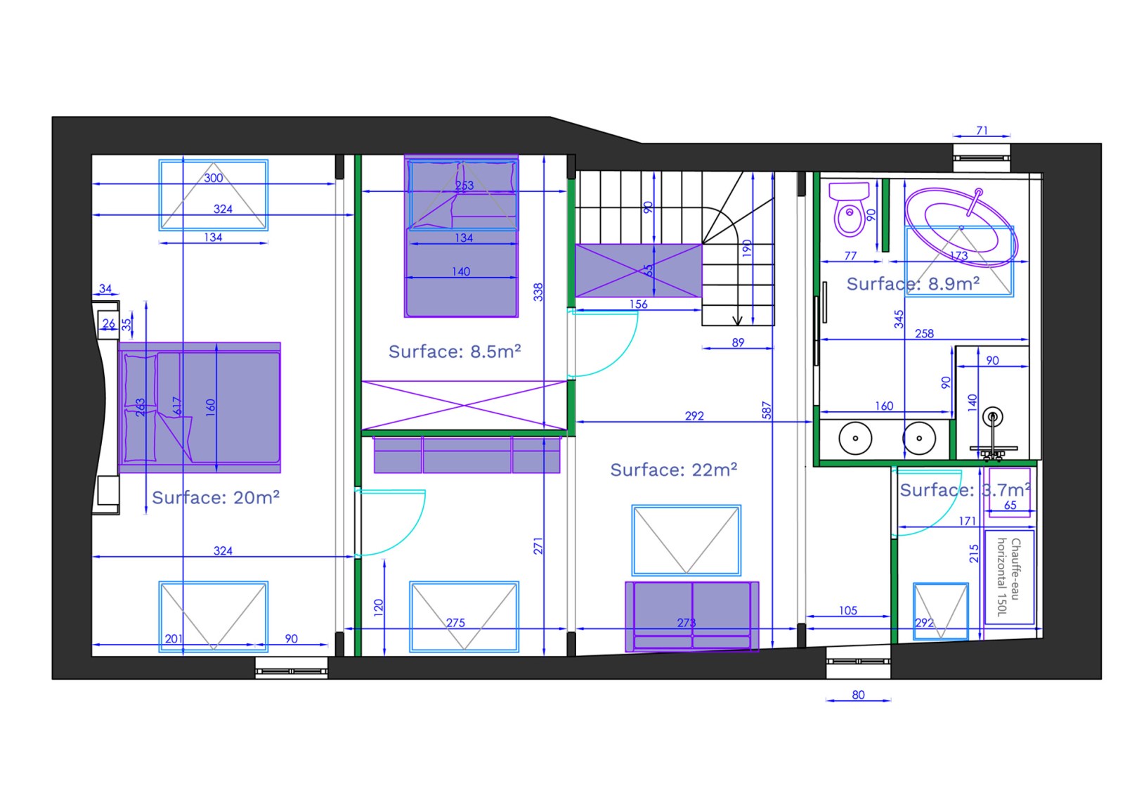
L’étage s’articule autour un grand espace de détente avec canapé et bibliothèque. Il dessert deux chambres une salle de bain avec wc et une lingerie.
Année
- 2023
Localisation
- Le Teilleul - Normandie
Type d'espace
- Maison de campagne














